Mieszkanie z szafą gospodarczą i pralką pod umywalką. Architekt zaprojektował je dla siebie i żony. Jest w kolorze szałwiowym

2025-09-02 16:34

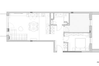
Mieszkanie o powierzchni 65 metrów z pojemną szafą gospodarczą i pralką pod umywalką. Fronty są w kolorze szałwiowym, dominują obłe kształty. Architekt Kamil Paszek zaprojektował je dla siebie i żony. "Szafa gospodarcza to moja ulubiona część" - opowiada. I dodaje: Każdy element w tym mieszkaniu miał być przyjazny w codziennym użytkowaniu. Zobacz mieszkanie architekta w Poznaniu.

Murator Remontuje #2: Jak wymienić spuchniętą od wody ościeżnicę?
Materiał sponsorowany
Materiał sponsorowany

Mieszkanie architekta Kamila Paszka w Poznaniu ma 65 metrów kwadratowych i inspirowane jest organicznymi kształtami - takie kształty prawdziwy hit ostatnich miesięcy. Supermodne są obłe sofy czy fotele, lustra o organicznych kształtach, miękkie linie. Paszko to architekt, właściciel studia AMJ studio. Jak przyznaje, projektowanie dla siebie nie jest łatwe. 

- Dlatego zaczęliśmy od bardzo osobistych pytań: jak chcemy mieszkać? Co nas uspokaja? Co nas inspiruje? Co nas irytuje na co dzień – i jak tego uniknąć?" - przyznaje architekt. I dodaje: - Nasze mieszkanie ma 65 metrów kwadratowych. Od początku wiedzieliśmy, że kluczem będzie maksymalne wykorzystanie każdego centymetra – ale bez kompromisów estetycznych. Chciałem, żeby było spokojne, naturalne i dobrze przemyślane. A przede wszystkim – funkcjonalne.

Jak zatem je zaplanował?

Przedpokój – konsola o obłych kształtach i miejsce na klucze

Po wejściu do mieszkania potrzebujemy w przedpokoju miejsca na drobiazgi. To się ono znalazło. Stoi tu konsola o obłych kształtach, która mieści wszystko – od kluczy po okulary.

- Blat z konglomeratu, dopasowany odcieniem do ściany i lustra, wykończyliśmy wywinięciem, a ścienne panele z wyraźną fakturą dodają głębi. Co ciekawe – to właśnie od tych paneli zaczęliśmy cały projekt. Potem dopasowałem do nich mebel, światło, materiały - mówi architekt.

W korytarzu są też duże lustra, które nie tylko powiększają optycznie przestrzeń, ale też pozwalają światłu naturalnemu dotrzeć głębiej.

Szafa gospodarcza w mieszkaniu. Fronty w kolorze szałwiowym

Pierwotny układ mieszkania nie zakładał szafy w przedpokoju. Zdecydowaliśmy się przesunąć ścianę sypialni o 60 centymetrów - mówi Kamil Paszko.

– Ta zmiana pozwoliła nam wygospodarować miejsce na dwie zabudowy. Jedna mieści kurtki, druga - szafę gospodarczą. Wszystkie domowe sprzęty: odkurzacz, suszarka, deska do prasowania – mają tu swoje dokładnie wymierzone miejsce. Jest też wysuwane cargo na środki czystości – wąskie, wysokie i bardzo pojemne. Wbudowane gniazda, odpowiednia wysokość, dostęp z każdej strony – to drobiazgi, które naprawdę zmieniają komfort codziennego życia.

Mieszkanie dwustronne - to ułatwia wietrzenie

Korytarz dzieli mieszkanie na dwie strefy: dzienną i nocną. Okna wychodzą na dwie przeciwległe strony i dzięki temu pozwalają przewietrzyć mieszkanie. Sypialnie skierowane są na wschód, a salon – na zachód.

Łazienka – pralka pod umywalką

Każdy centymetr łazienki musiał być dobrze przemyślany. Tu zmniejszono długość prysznica, co pozwoliło wprowadzić wysoką szafę w zabudowie – idealną na ręczniki, kosmetyki i pranie. W prysznicu są wnęki na kosmetyki, wykończone płytkami – dzięki temu są niewidoczne od wejścia.

Pralka znalazła swoje miejsce pod umywalką – zastosowałem wyższą zabudowę z umywalką podblatową. Każdy schowek ma tu swoje uzasadnienie – i wszystkie razem sprawiają, że łazienka nie tylko dobrze wygląda, ale też świetnie funkcjonuje - opowiada właściciel studia AMJ.

Sypialnia z toaletką, a biurko w salonie

W sypialni udało się zmieścić szafę na całą ścianę. Tu też stoi wymarzona toaletka żony. Z kolei miejsce do pracy w domu jest na pierwszy rzut oka niewidoczne i ukryte jest w zabudowie salonu.

Dzięki systemowi chowanych frontów wystarczy otworzyć fronty, by pojawiło się biurko, z półkami, wysuwaną półką na klawiaturę i miejscem na monitor.

- Takie ukryte miejsce pracy to miejsce na kolekcję Lego, które pojawia się tylko wtedy, gdy korzystamy z biurka - uśmiecha się właściciel.

Zamknięta zabudowa miała stworzyć jednolitą płaszczyznę – bez blend, bez podziałów – co wymagało precyzyjnej współpracy z wykonawcami. Uchwyty są frezowane w drewnie, a fronty wykończone fornirem, wszystko płynnie się ze sobą łączy. 

Po przeciwległej stronie salonu, po drugiej stronie stołu dla przeciwwagi zaprojektowałem ażurowy, wolnostojący regał na książki i rodzinne pamiątki.

Kuchnia w  kolorach szarym i szałwiowym

Kuchnia to połączenie trzech rodzajów frontów – forniru, ciepłej szarości i szałwii. Tu też co tylko było można, ukryto. I tak ekspres do kawy stoi w zamykanej wnęce, a dodatki, przyprawy czy oleje są schowane w szafie cargo. Takie rozwiązania uwalniają blat i sprawiają, że kuchnia zawsze wygląda schludnie.

Materiały, kolory, kształty – jak to wszystko połączyć?

W całym mieszkaniu dominują spokojne, naturalne barwy i miękkie kształty. Są tu płytki o strukturze kamienia, drewno dębowe w różnych odcieniach. To mieszkanie miało też być praktyczne.

- Jest też przykładem tego, że nawet niewielka przestrzeń może być przemyślana w każdym calu - kończy architekt.

Praktyczne mieszkanie w spokojnych kolorach. Zdjęcia

Murowane starcie
Podłoga - parkiet czy panele. MUROWANE STARCIE
Murator Google News