3 domy do 70 m kw. dla trzyosobowej rodziny. Bez pozwolenia na budowę!

2024-08-08 13:12

Marzysz o własnym domu, ale ograniczenia budżetowe lub posiadana przez ciebie działka nie pozwalają na realizację dużych projektów? Domy o powierzchni do 70 m kw. są doskonałym rozwiązaniem dla par lub trzyosobowych rodzin, które chcą cieszyć się komfortem i funkcjonalnością na niewielkiej przestrzeni. Oto trzy projekty, na których budowę nie trzeba mieć pozwolenia!

Listen on Spreaker.

Jaki dom nie wymaga pozwolenia na budowę?

Zgodnie z aktualnymi przepisami nie trzeba mieć pozwolenia na budowę domów jednorodzinnych o powierzchni do 70 m kw. o maksymalnie dwóch kondygnacjach. Warunkiem jednak jest zgodność takiej inwestycji z miejscowym planem zagospodarowania przestrzennego lub w przypadku jego braku uzyskanie decyzji o warunkach zabudowy. 

Co ważne, chociaż nie trzeba mieć pozwolenia na budowę domu o metrażu mniejszym niż 70 m kw., to dalej wymagany jest projekt budowlany. Choć nie trzeba zatrudniać kierownika budowy ani prowadzić dziennika budowy, to obowiązek zgodności z przepisami czy wspomnianymi już planami zagospodarowania przestrzennego pozostaje niezmienny. 

3 nowoczesne domy do 70 m dla trzyosobowej rodziny. Bez pozwolenia na budowę!

Martin: połączenie natury z surowym, nowoczesnym designem na 57 m kw.

Ten niewielki dom ma niespełna 57 m kw. Jego sercem jest przestronny salon połączony z kuchnią i jadalnią. Duże okna wpuszczają do wnętrza mnóstwo naturalnego światła, tworząc przytulną atmosferę. Pozostałą część parteru zajmuje nieduża łazienka.

Poddasze jest niewielkie, ale funkcjonalne. Ma 24,75 m kw. Składa się z jednego dużego pomieszczenia, które w razie potrzeby można podzielić i stworzyć dodatkowy pokój, np. dla dziecka.

Projekt domu Martin

i

Autor: Space4u/Aleksandra Płużek, Katalog Murator Projekty/ Materiały prasowe

Zwróćcie uwagę na bryłę domu! Ta niewielka, lecz doskonale przemyślana konstrukcja to prawdziwa perełka dla miłośników minimalizmu. Z kolei wykonana z naturalnego drewna elewacja doskonale komponuje się z otaczającą zielenią. 

Duże, przeszklone fronty otwierają wnętrze na otaczający krajobraz, dając wrażenie, jakby dom był naturalnym przedłużeniem lasu.

Koszt stanu surowego zamkniętego szacowany jest na ok. 158 tys. zł.

PA-23: nowoczesna parterówka z trzema sypialniami

Projekt parterowego domu PA-23 to propozycja dla osób ceniących sobie prostotę i funkcjonalność. Bryła budynku jest zwarta i oszczędna w formie, co sprawia, że doskonale wpisze się w każde otoczenie. 

Ciemna, metalowa elewacja kontrastuje z jasnymi, drewnianymi akcentami, nadając domowi nowoczesnego charakteru. Duże przeszklenia zapewniają wnętrzom doskonałe doświetlenie i wizualny kontakt z ogrodem. 

Projekt domu PA-23

i

Autor: Marta Pióro/Katalog Murator Projekty/ Materiały prasowe

Powierzchnia użytkowa domu wynosi 61,2 m kw. Wszystkie pomieszczenia rozplanowano na jednej kondygnacji. Otwarta strefa dzienna łącząca salon, kuchnię i jadalnię ma nieco ponad 21 m kw. 

W środku znajdują się aż trzy sypialnie: główna i dwie dodatkowe, które ze względu na to, że są położone obok siebie, można połączyć w razie potrzeby w jedną większą lub zaaranżować w niej garderobę bądź nieco większą łazienkę.

Koszt stanu surowego zamkniętego szacowany jest na ok. 148 tys. zł.

Erna 3 drewniana: nowoczesna interpretacja tradycyjnej chaty

Erna 3 drewniana to dom o powierzchni 68,3 m kw. Połączenie naturalnych materiałów, takich jak drewno z dużymi przeszkleniami i minimalistyczną formą tworzy harmonijną kompozycję.

Drewniana okładzina elewacji nadaje budynkowi ciepły i naturalny wygląd. Kontrastują z nią ciemne elementy, takie jak dach, rynny czy obróbki okienne, które z kolei podkreślają nowoczesny charakter domu.

Duże, przeszklone ściany, zwłaszcza w części frontowej i od ogrodu, sprawiają, że wnętrza są dobrze doświetlone i przy okazji otwierają dom na ogród. Ich nietypowy, trójkątny kształt nadaje budynkowi oryginalności.

Projekt domu Erna

i

Autor: Archetyp/Tomasz Siemieniuk, Katalog Murator Projekty/ Materiały prasowe

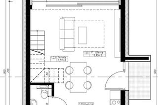
Budynek składa się z dwóch pięter. Na dole rozplanowano całkiem sporą strefę dzienną (aż 35 m kw.), sypialnię, klatę schodową, łazienkę i pomieszczenie gospodarcze. Natomiast piętro urządzono na antresoli o powierzchni 15,4 m kw. To doskonała lokalizacja na główną sypialnię!

Koszt stanu surowego zamkniętego szacowany jest na ok. 193 tys. zł