Dom do budowy etapami, z poddaszem do adaptacji. Zobacz projekt W cieniu drzew z katalogu Muratora

2024-03-08 14:53

W cieniu drzew z katalogu Muratora to projekt domu jednorodzinnego bez garażu do budowy etapami. Na etapie I zaaranżowany jest wyłącznie parter domu, na którym znajdują się m.in. 3 pokoje i 1 łazienka. Na etapie II zaadaptowane zostaje też poddasze: powstaje na nim duży pokój i łazienka. To propozycja np. dla rodziny 2+1, która niedługo się powiększy.

Szkoła Budowania: Otoczenie Domu

A101 W cieniu drzew (etap I)

  • Autorka: arch. Katarzyna Słupeczańska,
  • powierzchnia użytkowa 89,5 m²,
  • kubatura (brutto) 706,3 m³,
  • liczba pokoi (z salonem) 3,
  • wymiary działki 22,90 x 17,10 m.

Więcej szczegółów projektu: A101 W cieniu drzew (etap I)

A101 W cieniu drzew (etap II)

  • powierzchnia użytkowa 116,7 m²,
  • liczba pokoi (z salonem) 4.

Więcej szczegółów projektu: A101 W cieniu drzew (etap I)

Projekt domu A101 W cieniu drzew (etapowy) z zewnątrz: prosta bryła, dwuspadowy dach, neutralne i naturalne wykończenie

Projekt domu A101 W cieniu drzew (etapowy) z katalogu Muratora to budynek o klasycznej bryle na planie prostokąta z dwuspadowym dachem. Dom wyróżnia wnęka od strony ogrodu, miejsce na zadaszony taras. Dach domu wykończony jest prostą, ciemną dachówką ceramiczną, która współgra kolorystycznie z tynkiem mozaikowym na cokołach i betonowymi powierzchniami wokół domu. Ściany i stolarka domu są jasne: elewacje pokrywa głównie biały tynk cienkowarstwowy, który udekorowany jest deskami z naturalnego drewna w odcieniu podobnym do okien i drzwi.

A101 W cieniu drzew (etapowy) - wizualizacja od strony tarasu

i

Autor: Archiwum serwisu Galeria projektu domu od Muratora A101 W cieniu drzew (etapowy)

Projekt domu A101 W cieniu drzew (etapowy) wewnątrz - od etapu I z 3 pokojami, po etap II z zaadaptowanym poddaszem

Na parterze domu W cieniu drzew z katalogu Muratora za głównym wejściem znajduje się przedsionek z miejscem na garderobę, z drzwiami do kotłowni i korytarza. Po prawej stronie na planie autorka projektu rozrysowała dwie sypialnie o jednakowym metrażu. Po lewej stronie - część dzienną, która składa się z dużego pokoju (salonu i jadalni) z otwartą kuchnią. Na planie widoczna jest też łazienka i schody prowadzące do poddasza.

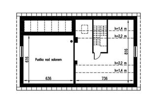
Na II etapie budowy domu część poddasza zostaje zaadaptowana na ponad 40-metrowy pokój, w którym znajdzie się miejsce np. na dwa łóżka lub jedno duże łoże małżeńskie, kawowy stolik i biurko do pracy oraz dodatkowe meble. Drugie pomieszczenie w aranżacji poddasza to łazienka. Strefa nad częścią dzienną na parterze pozostaje pusta.

A101 W cieniu drzew (etapowy) - plan parteru

i

Autor: Archiwum serwisu Galeria projektu domu od Muratora A101 W cieniu drzew (etapowy)
A101 W cieniu drzew (etapowy) - plan poddasza na etapie II

i

Autor: Archiwum serwisu Galeria projektu domu od Muratora A101 W cieniu drzew (etapowy)